Rodinný dům Ida

Ceník
Typový projekt 28 500 Kč
Situace stavby 11 900 Kč
PENB 5 900 Kč
PBŘS 4 900 Kč

Stavba na klíč od
3 620 000 Kč
Popis

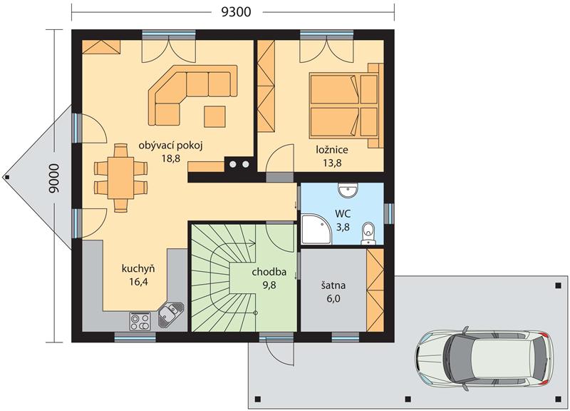
Rodinný dům Ida představuje přízemní zděný dům tradičního vzhledu s obytným podkrovím, zastřešený sedlovou střechou pro jednu rodinu. Do domu se vstupuje přes prostornou chodbu se šatnou, ze které je vstup do chodby, která je součástí obývacího pokoje a slouží jako hlavní komunikační prostor. Obývací pokoj, sloužící zároveň jako jídelna, je propojený s kuchyňským koutem. Z přízemí se nachází ještě ložnice. Z chodby je přístup schodištěm do podkroví, kde jsou dva dětské pokoje a pracovna. Obývací pokoj, kuchyňský kout a ložnice jsou propojeny francouzskými okny s terasou. Projekt je nabízen i v úsporném a nízkoenergetickém standardu provedení.

K domu lze přistavět garáž, projekt Vám zpracujeme i ve variantě s garáží.

Parametry
Typ: Zděný
Dispozice: 5+1
Podlaží: Podkrovní
Řadový: Ne
Garáž: možnost garáže
Komín: Ano
Střecha: Sedlová
Výška hřebene: 7,4 m
Sklon střechy: 35,0°
Zastavěná plocha: 89,3 m²
Užitková plocha: 138,5 m²
Obestavěný prostor: 583,9 m³
Půdorysy
Přízemí
Půdorys přízemí
Patro
Půdorys patra