Rodinný dům Freddy

Ceník
Typový projekt 34 500 Kč
Situace stavby 11 900 Kč
PENB 5 900 Kč
PBŘS 4 900 Kč

Stavba na klíč od
4 020 000 Kč
Popis

Rodinný dům Freddy je zděný dům se sedlovou střechou s velkým sklonem, jednoduchého půdorysu a čistá fasáda – to vše tvoří výraz klasického venkovského domu pro vícečlennou rodinu hodícího se do jakékoliv zástavby. Do domu se vstupuje přes zádveří do chodby, ze které je přístup do obývacího pokoje, kuchyně a ložnice v přízemí a schodištěm do dalších třech pokojů v podkroví. Dům nabízíme i v provedení dřevostavba-RD Freddy D.

K domu lze přistavět garáž, projekt Vám zpracujeme i ve variantě s garáží.

Parametry
Typ: Zděný
Dispozice: 6+1
Podlaží: Podkrovní
Řadový: Ne
Garáž: možnost garáže
Komín: Ano
Střecha: Sedlová
Výška hřebene: 7,1 m
Sklon střechy: 45,0°
Zastavěná plocha: 114,0 m²
Užitková plocha: 146,0 m²
Obestavěný prostor: 649,0 m³
Půdorysy
Přízemí
Půdorys přízemí
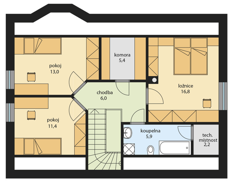
Patro
Půdorys patra