Rodinný dům Bella

Ceník
Typový projekt 34 500 Kč
Situace stavby 11 900 Kč
PENB 5 900 Kč
PBŘS 4 900 Kč

Stavba na klíč od
3 860 000 Kč
Popis

Dvoupodlažní zděný rodinný dům Bella moderního vzhledu o dispozici 5+kk je vhodný pro bydlení vícečlenné rodině. První podlaží tvoří obývací pokoj s kuchyňským koutem a pokoj /pro hosty/, který lze využít i jako ložnici. Ze všech obytných částí prvního podlaží se vstupuje do zahrady. Druhé podlaží je klidovou částí domu se dvěma pokoji a ložnicí s dvěma šatnami. Přes nevelké celkové rozměry nabízí dispozice nadstandardně dvě koupelny, komoru i technickou místnost, která umožňuje tento dům vybavit i technologiemi pro nízkoenergetický standard. Fasáda je řešena omítkou v kombinaci s obkladovými cihličkami, je možno řešit jen štukovou omítkou dle výběru investora.

K domu lze přistavět garáž, projekt Vám zpracujeme i ve variantě s garáží.

Parametry
Typ: Zděný
Dispozice: 5+1
Podlaží: Dvoupodlažní
Řadový: Ne
Garáž: možnost garáže
Komín: Ano
Střecha: Sedlová
Výška hřebene: 6,9 m
Sklon střechy: 20,0°
Zastavěná plocha: 94,2 m²
Užitková plocha: 130,3 m²
Obestavěný prostor: 622,6 m³
Půdorysy
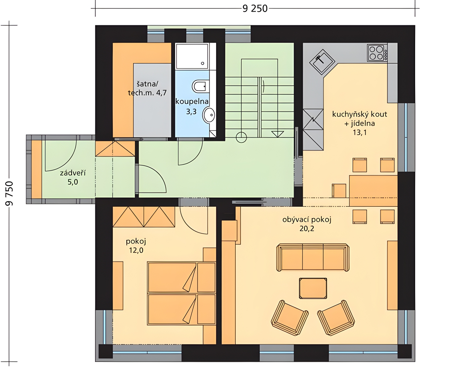
Přízemí
Půdorys přízemí
Patro
Půdorys patra