Rodinný dům Sven

Ceník
Typový projekt 34 500 Kč
Situace stavby od 11 900 Kč
PENB 5 900 Kč
PBŘS 4 900 Kč

Stavba na klíč od
4 480 000 Kč
Popis

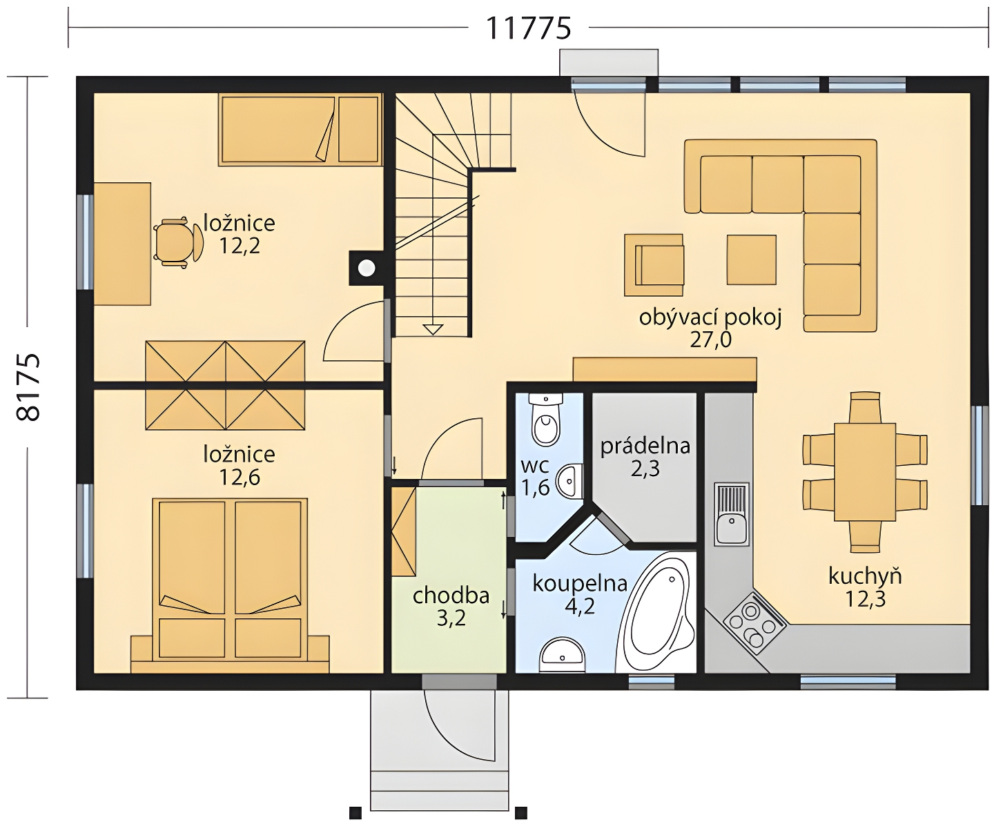
Rodinný dům Sven je klasický dům s obytným podkrovím se sedlovou střechou vhodný do městské i vesnické zástavby.Dispozice je navržena pro 5-6 člennou rodinu. Dům lze stavět i etapově, kdy se v přízemí vybuduje jedna bytová jednotka s obývacím pokojem kuchyní,dvěma ložnicemi, koupelnou a WC a další dvě ložnice s pracovnou, koupelnou a komorou se můžou dobudovat v podkroví. Fasáda je řešena kombinací omítky a obkladových cihliček, je možno ji řešit dle přání investora pouze šlechtěnou omítkou. Dům nabízíme i ve variantě dřevostavba-Rodinný dům Sven-D.

Parametry
Typ: Zděný
Dispozice: 6+1
Podlaží: Podkrovní
Řadový: Ne
Garáž: bez garáže
Komín: Ano
Střecha: Sedlová
Výška hřebene: 0,0 m
Sklon střechy: 0,0°
Zastavěná plocha: 99,8 m²
Užitková plocha: 122,4 m²
Obestavěný prostor: 598,0 m³
Půdorysy
Přízemí
Půdorys přízemí
Patro
Půdorys patra